Retail Design



Study Case
The overall layout emphasized functionality and style, creating a contemporary shopping environment, The space combines industrial and modern elements, featuring glossy surfaces and nature inspired finishes. Build in 3ds Max, using Vray material and put together using the power of Unreal Engine 5, with finishing touches in Adobe After Effects.




Entry & Product Display
Elevated Retail Experience
This concept render showcases the high-impact entry zone of a boutique retail space. I led the design and visualization of the architectural elements, product display zones, and lighting to create a luxurious, immersive first impression.
Lounge Area
Blending Comfort with Commerce
A stylized lounge vignette where modern retail meets hospitality. I handled the 3D modeling, material selection, and final rendering to simulate a comfortable, aspirational retail environment for the pretend client’s brief.
Center Feature Zone
Designing the Heart of the Store
A focal area combining natural materials and futuristic contours to elevate the customer journey. I created this full-scene render to express how architectural elements can guide flow and reinforce brand identity.






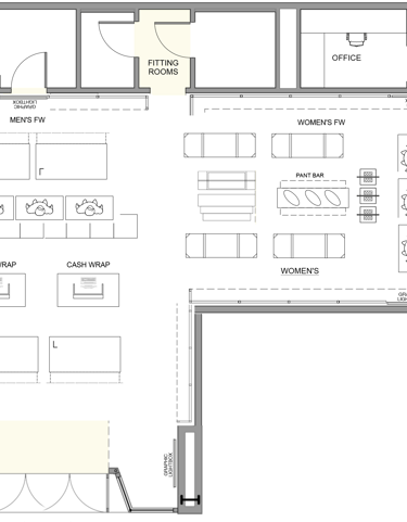
Floor Plan Drawing
Translating Vision to Blueprint
A fully detailed floor plan laying the foundation for the spatial logic of the concept. I drafted the layout to reflect zoning, flow, and fixture placement, ensuring form followed function from the ground up.
Graybox Spatial Model
Testing Function Before Form
A simplified volumetric model used to validate space planning and circulation. I created this early-stage asset to quickly iterate with the client on layout logic before moving into detailed design and materials.
Mood & Style Board
Establishing a Visual Language
A collection of material references, inspirational shots, and early form studies. This board helped align aesthetic direction with the pretend client's brand values before I developed full 3D concepts.






Concept Pass
Iterating on Spatial Concepts
This early rendering reflects the first round of client feedback. I used rapid modeling and lighting tools to test visual hierarchy, scale, and palette before final refinements.
Mid-Stage Development
Refining the Layout and Experience
Midway through the process, I refined form transitions, furniture composition, and environmental storytelling. This stage allowed exploration while maintaining alignment with the design intent.
Timeless Space Creation
Light Fixtures and Design
Our architecture services prioritize function and form to create spaces that stand the test of time.





